




$2,199,000
120 8 Avenue NW, Calgary, Alberta
About This Property
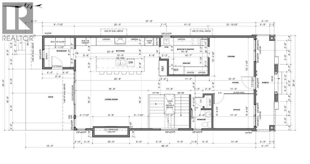
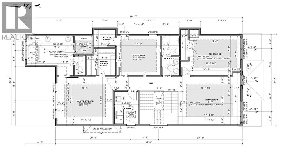
The Ultimate Inner-City Location – Steps from Crescent Park! Enjoy life just moments from tennis and basketball courts, a skating rink, playground, curling rink, and two baseball diamonds. Tucked away behind Crescent Road in a quiet setting, this home is within walking distance to downtown, Prince’s Island, St. Patrick’s Island, and the Bow River pathways. Bordering Rosedale, it offers stunning city, river, and mountain views.This custom-built 5-bedroom home boasts over 4,200 sq. ft. of luxurious living space, blending timeless design with modern comfort. Featuring 10’ceilings in basement and main floor and 9’ ceilings on upper floor with all rooms having tray ceilings, a massive chef’s kitchen with quartz counters and a butler’s pantry, high end JENN AIR appliances, black triple pane high efficiency windows, the open-concept layout flows seamlessly into the elegant living room with fireplace and French doors leading to a beautiful backyard oasis. The main floor also includes a spacious office and a formal dining room with city views. Upstairs, enjoy a bonus room, two additional bedrooms, and a private master retreat with barrel ceilings, fireplace, city views, a spa-like 5-piece en-suite, and a walk-in closet. The upstairs laundry adds extra convenience. The fully finished lower level features a media room, bar, gym, wine cellar, two more bedrooms, and a custom 4-piece bath—perfect for family or guests. This is truly a rare find in one of Calgary’s most desirable inner-city locations. (31729740)
Property Details
Features
Interested in this property?
Contact the listing agent for open house dates, times, and to schedule a private viewing.
MLS# A2291389



