




$649,900
108 Harvest Creek Court NE, Calgary, Alberta
About This Property
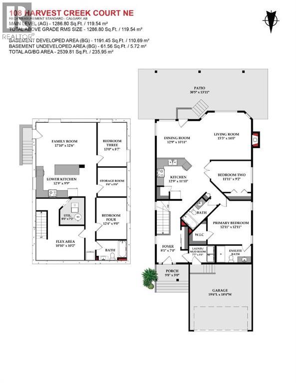
Smart Bungalow Design, Views & Green Space Location in Harvest Hills.Beautifully curated and immaculately maintained, this exceptional bungalow is one of the finest offerings in the highly sought-after Harvest Hills community. Perfectly positioned on a low-traffic street with evident pride of ownership, this fully finished home delivers over 2,500 square feet of thoughtfully designed living space and a setting that captures both valley views and access to green space.The main floor showcases a bright, open-concept layout with vaulted ceilings, oversized windows, and quality tile and laminate flooring throughout. The expansive living room flows seamlessly into the kitchen and dining area, creating an inviting space ideal for everyday living and entertaining. The kitchen is filled with natural light and offers south-facing views, oak cabinet doors, a pantry, upgraded appliances, and a dramatic peninsula island with an integrated sink. The main floor family room is anchored by a gorgeous gas fireplace with a classic mantel and tile surround, adding warmth and character.Two bedrooms and two full bathrooms complete the main level, including a spacious primary suite featuring a private ensuite with a five-foot tiled shower and a separate walk-in closet. The design is both functional and elegant, offering comfort without compromise.The fully developed lower level has been renovated and includes a separate side-entry walk-up staircase, providing excellent flexibility. Downstairs, you will find a kitchen area, recreation room, additional family room, two more bedrooms, and an extra-generous finished storage and laundry space, making it ideal for extended family, guests, or multigenerational living.Notable upgrades include quartz countertops, luxury vinyl plank flooring, recessed LED lighting, modern white-painted doors, casings and baseboards, and a double attached garage with an extra-wide concrete driveway. The impressive 38' x 14' covered concrete rear patio ext ends your living space outdoors and overlooks a beautifully fenced south-facing backyard oasis with a large grassy area, wide side yards, concrete walkways, easy-care vinyl siding, and incredible valley views.The exterior elevation is equally appealing, highlighted by a charming covered front porch and convenient side-entry access. Steps from pathways, parks, the lake, ice rink, schools, shopping, coffee shops, and with quick access to Deerfoot Trail for an easy drive to the airport and downtown Calgary, this location truly checks every box.Immediate possession is available. Check and compare—this is an absolutely beautiful home in an outstanding area. Call your friendly REALTOR® to book your private viewing. (31694209)
Property Details
Features
Interested in this property?
Contact the listing agent for open house dates, times, and to schedule a private viewing.
MLS# A2289100



